Champ closVilla E - Villarsel Le Gibloux, 1695
Villa E - Villarsel Le Gibloux, 1695
Villa E - Villarsel Le Gibloux, 1695
3 des lits
2 thermes
202 m²
Fr.1,090,000
Bases
- Date ajoutée: Ajouté il y a 4 mois
- Catégorie: Champ clos
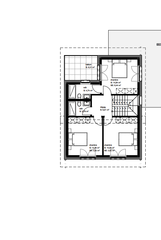
- Des chambres: 3
- Salles de bains: 2
- WC séparer: 1
- Chambres totales: 3
- Etages : 1
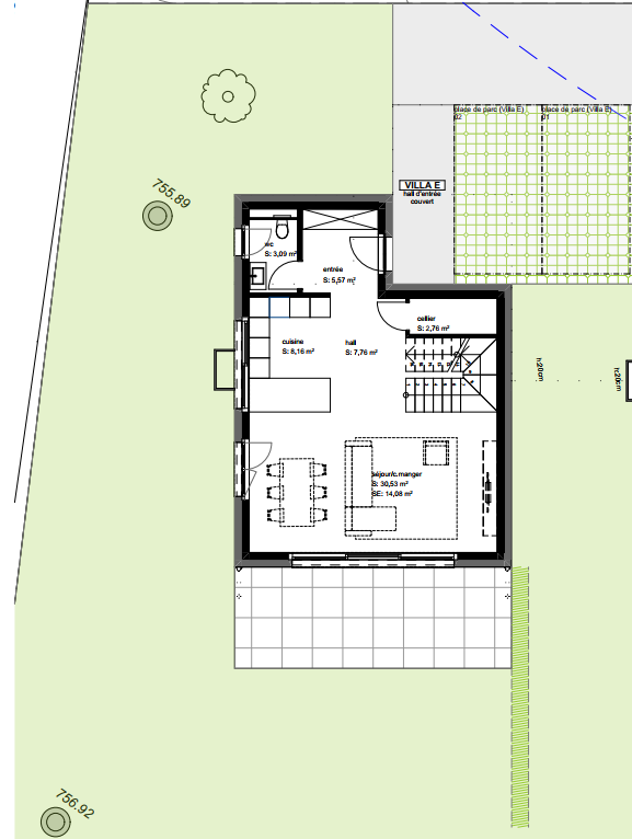
- Superficie: 202 m²
- La taille du lot : 359 m²
- Année de construction: 2026
La description
-
La description:
Villa E
✨ Rare sur le marché
Cette villa individuelle offrent des surfaces généreuses de 202 m² brut habitables, implantée sur une parcelle de 359 m². Un format spacieux devenu exceptionnel aujourd’hui !
Situées dans un cadre verdoyant et très calme, elles permettent de profiter de la tranquillité de la campagne tout en restant à seulement 7 minutes de l’autoroute, avec un accès rapide à Bulle, Fribourg, Lausanne et Berne.
👉 Finitions au gré du preneur et personnalisation possible. Discutons ensemble de votre projet immobilier - estimation et conseils gratuits, sans aucune obligation.
🔑 Points forts
- Surfaces remarquables : 202 m².
- Villas 100 % individuelles : indépendance et intimité garanties.
- Terrains de 359 m² avec jardin et terrasse privative.
- Architecture moderne, finitions au gré du preneur.
- Excellente situation : calme, ensoleillement, campagne, mais proche des commodités.
🛠️ Atouts techniques
- Pompe à chaleur avec sonde géothermique (chauffage + eau chaude).
- Isolation conforme aux normes actuelles.
- Fibre optique installée.
- Thermostat individuel par pièce.
- 2 places couvertes par villa + places visiteurs.
💰 Prix
Dés: CHF 1’090’000.-
👉 Contactez dès aujourd’hui votre agent Aximo pour un entretien gratuit et sans engagement.
Afficher toute la description
Demandez à un agent à propos de cette maison
This style property is located in is currently Champ clos and has been listed on www.aximo-conseil.ch. This property is listed at Fr.1,090,000. It has 3 des lits bedrooms, 2 thermes bathrooms, and is 202 m². The property was built in 2026 year.
